
Łazienka bez barier Bez barier, bez przeszkód, bez problemu
Nowoczesne projekty łazienek dla osób niepełnosprawnych łączą w sobie wysoką funkcjonalność z wysoką estetyką i stylowym wzornictwem. Umożliwiają i ułatwiają samodzielne korzystanie osobom w każdym wieku, niezależnie od ograniczeń ruchowych i stopnia mobilności. Projektując prywatne i publiczne toalety bez barier, należy wziąć pod uwagę nie tylko prawne wytyczne ogólnobudowlane, ale przede wszystkim dobre praktyki i potrzeby osób niepełnosprawnych
Projektowanie uniwersalne
Filozofia projektowania produktów i otoczenia w taki sposób, by mogły być one użyte przez wszystkich ludzi, w możliwie szerokim zakresie, bez potrzeby adaptacji lub specjalnego projektowania.
Czego dotyczy projektowanie uniwersalne? Dosłownie wszystkiego – tak, by każdy, bez względu na wzrost, płeć, mobilność, niepełnosprawność – mógł z tego korzystać. I może to być projektowanie mebli, naczyń czy dróg – ale nas najbardziej interesuje łazienka. Dlatego przy współpracy z ekspertami, wykorzystaniu norm, standardów dostępności zaprojektowanych przez miasta w Polsce, ale przede wszystkim dzięki ponad trzydziestoletniemu doświadczeniu, jakie marki Koło i Geberit wypracowały podczas spotkań z architektami, wykonawcami i aktywistami, prezentujemy odświeżony materiał o projektowaniu łazienek uniwersalnych.
Łazienka bez barier musi być funkcjonalna i bezpieczna


Łazienki i toalety publiczne powinny być dostosowane do potrzeb wszystkich ludzi, a w szczególności osób z niepełnosprawnością. Pozwala to na swobodny dostęp do wielu usług i znacznie ułatwia codzienne funkcjonowanie w przestrzeni publicznej.
Udostępnienie dobrze zaprojektowanych i użytecznych łazienek i toalet publicznych bez barier ma szczególne znaczenie w takich miejscach, jak:
- centra handlowe, dworce, lotniska, punkty usługowe, hotele i restauracje, muzea, kina, teatry,
- szpitale, przychodnie, domy opieki, ośrodki rehabilitacyjne, ale także baseny, siłownie i kluby fitness, co ma ułatwić osobom z niepełnosprawnością korzystanie z tego rodzaju obiektów,
- biura, urzędy, szkoły, przedszkola, uniwersytety, co ma umożliwić dostęp do edukacji i możliwość pracy zawodowej na każdym poziomie.
Wytyczne formalne określające sposób organizacji łazienek dla osób z problemami w poruszaniu się (pamiętajmy, że warto tu także pomyśleć o seniorach) są zawarte w Rozporządzeniu Ministra Infrastruktury z dnia 12 kwietnia 2002 roku w sprawie warunków technicznych, jakim powinny odpowiadać budynki i ich usytuowanie. W rozdziale 6 zawarte są informacje dotyczące organizacji toalety publicznej. Wymiary nie są precyzyjnie podane, ale znajdziemy informacje, które pomagają w zaprojektowaniu funkcjonalnej przestrzeni. Te wytyczne warto uzupełnić o dobre praktyki i wskazówki opisane w europejskiej normie DIN 18040 poziomie.

Łazienki i toalety publiczne powinny być dostosowane do potrzeb wszystkich ludzi, a w szczególności osób z niepełnosprawnością. Pozwala to na swobodny dostęp do wielu usług i znacznie ułatwia codzienne funkcjonowanie w przestrzeni publicznej.
Udostępnienie dobrze zaprojektowanych i użytecznych łazienek oraz toalet publicznych bez barier ma szczególne znaczenie w takich miejscach, jak:
centra handlowe, dworce, lotniska, punkty usługowe, hotele i restauracje, muzea, kina, teatry,
szpitale, przychodnie, domy opieki, ośrodki rehabilitacyjne, ale także baseny, siłownie i kluby fitness. Ma to ułatwić osobom z niepełnosprawnością korzystanie z tego rodzaju obiektów. W biurach, urzędach, szkołach, przedszkolach, uniwersytetach jest to kwestia dostępu do edukacji i możliwość pracy zawodowej na każdym poziomie.
Wytyczne formalne określające sposób organizacji łazienek dla osób z problemami w poruszaniu się (pamiętajmy, że warto tu także pomyśleć o seniorach!) są zawarte w Rozporządzeniu Ministra Infrastruktury z dnia 12 kwietnia 2002 roku w sprawie warunków technicznych, jakim powinny odpowiadać budynki i ich usytuowanie. W rozdziale 6 pojawiają się informacje dotyczące organizacji toalety publicznej, w tym łazienek dla osób z niepełnosprawnościami (potocznie nazywanych też „łazienkami dla niepełnosprawnych”). Wymiary nie są precyzyjnie podane, ale pomagają w zaprojektowaniu funkcjonalnej przestrzeni w łazience bez barier. Te wytyczne warto uzupełnić o dobre praktyki i wskazówki opisane w europejskiej normie DIN 18040.
Jak zaprojektować łazienkę bez barier?



Wytyczne funkcjonalne
Strefa toalety
Strefa WC w łazience bez barier od czego zacząć projektowanie?
Strefa toalety to najważniejsza część łazienki uniwersalnej. Poniżej wytyczne dotyczące projektowania ubikacji dla osób z niepełnosprawnością.
Podstawowe wytyczne dla WC dla osób z niepełnosprawnością
- wysokość siedziska miski WC powinna wynosić od 46 cm do 48 cm od podłogi, a głębokość – 70 cm;
- przycisk spłukujący powinien zostać zamontowany na wysokości 80 cm–110 cm;
- najlepiej, jeżeli przycisk spłukujący jest zamontowany na ścianie, z boku toalety, na wysokości 80 cm–110 cm od posadzki; możliwe jest także zamontowanie go na poręczy;
- poręcze powinny zostać zamontowane na wysokości 80 cm–110 cm od podłogi, a ich średnica powinna wynosić 2 cm–3,5 cm.

Transfer w toalecie dla osób z niepełnosprawnością
Transfer to inaczej przesiadanie się z wózka na miskę WC. Jest to łatwe w przypadku toalety umieszczonej na środku ściany, gdzie po prawej i lewej jej stronie jest zachowana odpowiednia przestrzeń manewrowa, jednak w mniejszych łazienkach, gdzie po jednej stronie jest ściana, może być trudniejsze. Wówczas należy zastosować poręcze ścienne ułatwiające siadanie.
- Miska WC w toalecie dla osób z niepełnosprawnością powinna zostać zamontowana tak, aby pozwalała na transfer z obu stron, a jeżeli to niemożliwe – z jednej strony. Wtedy należy zadbać o informację na temat lokalizcji najbliższej toalety, w której dostępny jest transfer dwustronny.
- Dla maksymalnej wygody użytkowania ubikacji powinny zostać zamontowane poręcze uchylne, które można podnieść w razie potrzeby.

Jaką toaletę wybrać od łazienki bez barier?
Geberit rekomenduje jedną z misek WC o wydłużonej do 70 cm konstrukcji:
- Geberit Selnova Comfort – 501.044.00.7
- Geberit Selnova Comfort Rimfree – 501.046.00.7
- Geberit Selnova Comfort Square Rimfree – 501.791.00.7
- Geberit Selnova Comfort Premium Rimfree – 500.693.01.7
- Geberit Vitalis – 201500000
Do każdej z nich proponujemy siedzisko sedesowe pozbawione pokrywy Selnova Comfort 501.558.01.1 lub Renova Comfort 572860000.

Dostępne spłukiwanie
O spłukiwaniu Geberit wie wszystko! Również o tym do łazienek bez barier. Dlatego poza przyciskiem jednodzielnym Geberit Sigma10 polecamy również wykorzystanie poręczy Lehnen z przyciskiem radiowym lub skorzystanie z przycisku zdalnego Geberit Typ01.



Wytyczne dotyczące wymiarów



Strefa umywalki
UMYWALKI W ŁAZIENCE DLA OSÓB Z NIEPEŁNOSPRAWNOŚCIĄ WYMAGANIA
Projektowanie strefy umywalki dla osób z niepełnosprawnością wymaga uwzględnienia szczególnych potrzeb użytkowników, by zapewnić im wygodę i bezpieczeństwo. Umywalka powinna być dostosowana do osób o ograniczonej mobilności, co obejmuje zarówno odpowiednią wysokość, przestronność, jak i funkcjonalność. Poniżej przedstawiamy kluczowe wytyczne:
Wymagania

- blat umywalki w łazience bez barier powinien znajdować się na wysokości 75cm–85 cm od podłogi;
- przestrzeń pod umywalką powinna mieć minimalną wysokość 70 cm;
- odległość wlewki od krawędzi umywalki powinna wynosić maksymalnie 30 cm;
- uchwyty w strefie umywalki powinny być stałe, umieszczone ok. 85 cm od podłogi;
- zaleca się stosowanie bezdotykowych baterii o przedłużonej wlewce.
JAKĄ UMYWALKĘ WYBRAĆ DO TOALETY BEZ BARIER?
Do strefy umywalki rekomendujemy umywalki z serii Selnova Comfort lub Selnova Comfort Square. Mają one charakterystyczne płaskie dno, co ułatwia wjechanie wózkiem pod umywalkę aż do samej jej krawędzi. Co więcej, wyposażono je we wzmocnienia bocznych krawędzi, więc w razie potrzeby można się ich chwycić bez ryzyka uszkodzenia umywalki.
W tych umywalkach dla osób z niepełnosprawnością również profil przedniej krawędzi jest ergonomicznie zaprojektowany, co ułatwia korzystanie.

JAKĄ BATERIĘ WYBRAĆ DO ŁAZIENKI DLA OSÓB Z NIEPEŁNOSPRAWNOŚCIĄ?
Umywalki Bez Barier powinny zostać wyposażone w baterię z wydłużonym mieszaczem albo baterię bezdotykową. Baterie przeznaczone dla osób z niepełnosprawnością (określane także jako „baterie dla niepełnosprawnych”) zapewniają łatwą i bezpieczną obsługę, wspierając samodzielność użytkowników. Geberit proponuje baterie bezdotykowe Geberit Brenta i Geberit Piave – zarówno umywalkowe, jak i ścienne.

JAKI SYFON WYBRAĆ DO UMYWALKI DLA OSÓB Z NIEPEŁNOSPRAWNOŚCIĄ?
Aby możliwe było bezpieczne podjechanie wózkiem do samej krawędzi umywalki, Geberit proponuje ukryte w ścianie syfony do umywalek do łazienek dla osób z niepełnosprawnością. Płaska budowa i elementy armatury w zabudowie to wygoda i swoboda korzystania ze strefy umywalki.

WYTYCZNE DOTYCZĄCE WYMIARÓW



Strefa prysznica
STREFA PRYSZNICA W ŁAZIENCE BEZ BARIER
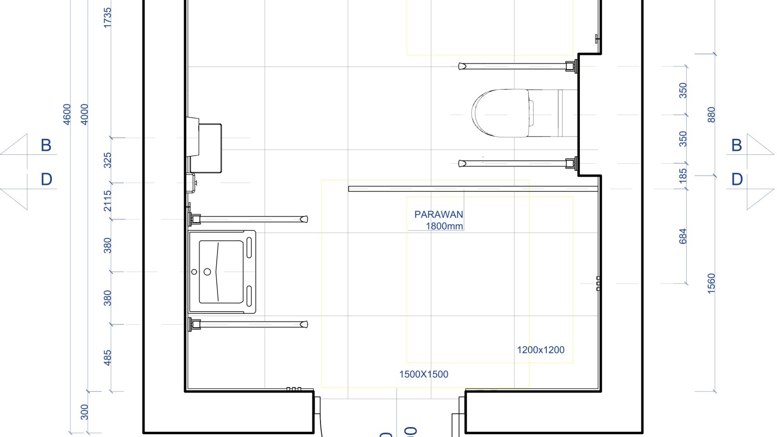
Strefa prysznica powinna być przygotowana do wjechania do niej i manewrowania wózkiem. Oznacza to, że powinna mieć minimalne wymiary wewnętrzne 230 cm x 250 cm oraz przestrzeń do manewrowania wózkiem wynoszącą 150 cm x 150 cm.
PRYSZNIC W ŁAZIENCE BEZ BARIER – WYMAGANIA
Strefa prysznica powinna zostać też wyposażona w urządzenia ułatwiające korzystanie z niej, tj:
- siedzisko składane na wysokości 46–48 cm, o wymiarach 50 cm x 45 cm, umożliwiające postawienie wózka obok;
- baterię zamontowaną na ścianie lub na poręczy pionowej;
- półkę lub dozownik na kosmetyki na wysokości 80–110 cm.
- Przestrzeń prysznicowa w łazience dostosowanej dla osób z niepełnosprawnością powinna jednak docelowo być otwarta z dwóch stron, aby zapewnić łatwe manewrowanie wózkiem.
W strefie prysznica zachęcamy do montażu siedziska Lehnen Concept Pro L62001000. Siedzisko bardzo łatwo zdjąć w celu umycia i równie łatwo można je zamontować ponownie.

Poruszanie się w łazience
Warto, aby kabiny zostały wyposażone w słuchawki prysznicowe z wężem o długości co najmniej 150 cm oraz możliwością zawieszenia.
Sama bateria prysznicowa powinna mieć termostat pozwalający na ustawienie maksymalnej temperatury 40 stopni, co chroni przed poparzeniem.

Brodzik czy podłoga?
W łazience bez barier kabina prysznicowa, ze względu na progi, nie ma racji bytu. Dlatego proponujemy prysznice częściowo zamknięte za kurtyną prysznicową.Wybór jest bardzo szeroki:
- Akrylowe brodziki Geberit Nemea
- Ceramiczne brodziki Geberit Typ35
- Kamienne brodziki Geberit Olona
- Kamienne brodziki Geberit Sestra
Wszystkie modele brodzików Geberit można zlicować z podłogą, by całkowicie usunąć progi i nierówności.
Brodziki Typ35, Olona i Sestra wyróżniają się najwyższą klasą antypośligowości C.
- Gdyby równa podłoga okazałą się najlepszym wyborem, Geberit proponuje odpływy:
- liniowe Geberit CleanLine
- ścienne
- punktowe Geberit Varino.

WYTYCZNE DOTYCZĄCE WYMIARÓW



Wymiary pomieszczenia
Rozmiary i wytyczne łazienki bez barier
W przestrzeni publicznej przynajmniej jedno pomieszczenie na kondygnacjach dostępnych dla osób z niepełnosprawnością musi być dostosowane w odpowiedni sposób. Oznacza to między innymi:
- przestrzeń manewrową, do wygodnego poruszania się na wózku, o powierzchni co najmniej 150 x 150 cm;
- drzwi bez progów lub o progach maksymalnie do 2 cm;
- przynajmniej jedną przystosowaną toaletę i umywalkę, oraz, opcjonalnie, jeden natrysk, jeśli jest potrzebny;
- poręcze ułatwiające korzystanie z sanitariatów;
- powierzchnię umożliwiającą transfer na toaletę – min. 90 x 140 cm

Podstawowe funkcjonalności łazienki bez barier
- Należy przystosować drzwi tak, aby progi miały wysokość maksymalnie do 2 cm lub – w najlepszym wypadku – nie było ich wcale.
- Toaleta dla osób z ograniczoną mobilnością (określana powszechnie jako „toaleta dla niepełnosprawnych”) powinna być wyposażona w przynajmniej jedną przystosowaną miskę WC o długości 70 cm i umywalkę, oraz, opcjonalnie, jeden natrysk, jeśli jest potrzebny.
- W łazience powinny zostać także zainstalowane poręcze i uchwyty ułatwiające korzystanie z wyżej wymienionych urządzeń.
Nie może też być żadnych wolno stojących urządzeń utrudniających poruszanie się, jak kosze na śmieci. Te należy przymocować do ściany.

PORĘCZE W ŁAZIENCE DLA OSÓB Z NIEPEŁNOSPRAWNOŚCIĄ
Bez względu na strefę, w jakiej się znajdują, poręcze pozwalające na łatwe korzystanie z łazienki to konieczność. Polecamy poręcze Lehnen wykonane z wysokiej jakości stali, skonstruowane tak, by nigdy nie zawiodły.
Dostępne są poręcze zarówno stałe, jak i uchylne. Warto pamiętać, że w strefie WC należy montować poręcze i uchwyty uchylne, by umożliwić wygodny transfer na toaletę.

JAKI STELAŻ GEBERIT WYBRAĆ DO ŁAZIENKI BEZ BARIER?
Aby zapewnić maksymalne bezpieczeństwo podczas korzystania z toalety bez barier, szczególnie osobom z trudnościami w poruszaniu się, Geberit proponuje najwytrzymalsze rozwiązania na rynku.
JAKI WYBRAĆ STELAŻ DO WC DLA OSÓB Z NIEPEŁNOSPRAWNOŚCIĄ?
W przypadku strefy WC wybór jest prosty – każdy stelaż Geberit Duofix jest przystosowany do utrzymania misek WC bez barier, o długości do 70 cm.

Unikalny stelaż do montażu miski WC i poręczy
Polecamy stelaż Geberit Duofix 111.396.00.6 pozwalający na regulację wysokości miski WC oraz stelaż Geberit Duofix 111.790.00.2, pozwalający na zamontowanie poręczy. Unikalnym modelem jest natomiast stelaż Duofix 111.375.00.6.
Stelaż 111.375.00.6 jest wzmocniony dodatkową ramą, pozwalającą na montaż poręczy, ułatwiających korzystanie z toalety. Wytrzymałość pozwala na pewne i stabilne użytkowanie.
Czy potrzebuję innych wsporników?
Nie - cała konstrukcja opiera się na tych się na tych samych częściach systemu Duofix - zarówno w przypadku montażu bezpośrednio do ściany jak i na szynach Duofix.

Co w rogu pomieszczenia?
Aby zapewnić maksymalną wygodę podczas korzystania z toalety mieszczącej się w rogu pomieszczenia, proponujemy połączenie stelaża Geberit Duofix Sigma 111.320.00.6 oraz stelaża do poręczy Geberit Duofix 111.790.00.2.
Na prostopadłej ścianie polecamy zastosować poręcz ścienną Geberit Lehnen oraz pneumatyczny zdalny przycisk spłukujący Geberit Typ10.

Pobierz rzuty, listę produktów i pliki 3D łazienek bez barier
Komfortka
Łazienka z przewijakiem dla dzieci
Łazienka z przewijakiem dla dzieci
Wizualizacje






Łazienka z prysznicem
Łazienka z prysznicem
Wizualizacje





Łazienka z transferem jednostronnym
Łazienka z transferem jednostronnym
Wizualizacje






Projektujesz łazienkę bez barier? Oto wytyczne i dobre praktyki
Zbieramy w jednym miejscu źródła, które pomogą Ci w zaprojektowaniu dostępnej przestrzeni:
Konwencja o prawach osób z niepełnosprawnością
WŁĄCZNIK 2.0 - Wytyczne projektowania Bez Barier
Standardy dostępności architektonicznej dla miasta Warszawy
Standardy dostępności Poznania
Standardy dostępności budynków dla osób z niepełnosprawnościami
Konkurs Geberit na projekt łazienki Najstarszy konkurs w Polsce na dostępną łazienkę

To już 26 edycja Konkursu na projekt łazienki, kierowanego do młodych architektów. Każdorazowo w wytycznych prac projektowych znajdują się wymagania dotyczące dostosowania łazienek do potrzeb osób z niepełnosprawnościami.
Zobacz szczegóły konkursu:










